Price Alerts
$3,950,000
  • Time on Site: 54 days
1120 Harold Road Lynn Valley, North Vancouver
Bed:
3 + den
Bath:
1
Interior:
2,479 sq/ft

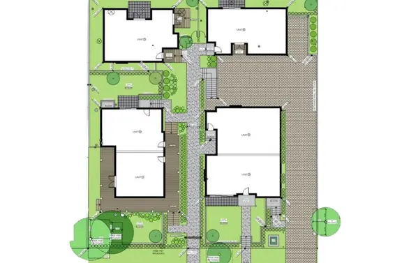
A rare chance to acquire a fully approved, shovel-ready project in the heart of Lynn Valley. DEVELOPMENT PERMIT NOW ISSUED - purchaser can mobilize and begin construction upon Building Permit. Features: Six high-quality homes across two duplexes + two coach houses, efficient layouts optimized for end-user families and downsizers, structurally efficient design; three of four structures are slab-on-grade, significantly reducing construction cost and complexity. 10,656 SQ.FT. OF NET BUILDABLE. Harold Road offers outstanding proximity and lifestyle appeal, just minutes to Lynn Valley Centre, top schools, parks, transit, and endless outdoor recreation. Opportunities like this are rare, with a highly marketable product that’s perfectly suited for today’s buyers upon completion.

Upcoming Opens

No Opens scheduled. Contact us to book a viewing.

Property Details

  • List Price [LP]: $3,950,000
  • Original List Price [OLP]: $3,950,000
  • List Date: March 24, 2026
  • Last Updated: April 8, 2026, 1:09 p.m.
  • Days on Market: 57
  • Address: 1120 Harold Road
  • MLS® Number: R3104153
  • Listing Brokerage: Angell, Hasman & Associates Realty Ltd.
  • Type: House/Single Family
  • Style of Home: Residential Detached
  • Title: Freehold NonStrata
  • Age: 121 years
  • Year Built: 1905
  • Bedrooms: 3
  • Total Bathrooms: 1
  •     Full Bathrooms: 1
  • Dens: 1
  • Floors: 2
  • Int. Area: 2,479 sq/ft
  •     Main Floor: 1,169 sq/ft
  •     Above Main Floor Area: 800 sq/ft
  •     Unfinished Floor Area: 510 sq/ft
  • # of Rooms: 13
  • # of Kitchens: 1
  • Lot Size: 14,320 sq/ft
  • Frontage: 114
  • Depth: 126
  • Gross Taxes: $8682.29
  • Taxes Year: 2024
  • Roof: Other
  • Heat: Forced Air, Natural Gas
  • Construction: Frame Wood, Wood Siding

Seeing this blurry text? - The Real Estate Board requires you to be registered before accessing this info. Sign Up for free to view.

Features

  • Outdoor Areas: Patio, Deck, Fenced
  • Site Influences: Shopping Nearby, Central Location, Recreation Nearby
  • Parking Type: Open

Seeing this blurry text? - The Real Estate Board requires you to be registered before accessing this info. Sign Up for free to view.

Room Measurements

Level Room Measurements
Main Living Room 0'0 × 0'0
Main Family Room 0'0 × 0'0
Main Den 0'0 × 0'0
Main Dining Room 0'0 × 0'0
Main Kitchen 0'0 × 0'0
Main Foyer 0'0 × 0'0
Main Laundry 0'0 × 0'0
Above Bedroom 0'0 × 0'0
Above Bedroom 0'0 × 0'0
Above Bedroom 0'0 × 0'0
Above Other 0'0 × 0'0
Below Storage 0'0 × 0'0
Below Utility 0'0 × 0'0

Seeing this blurry text? - The Real Estate Board requires you to be registered before accessing this info. Sign Up for free to view.

Map

Recent Price History

Date MLS # Price Event
March 26, 2026 R3104153 $3,950,000 Listed
March 30, 2022 R2546198 $2,250,000 Sold
March 4, 2021 R2546198 $2,250,000 Listed
March 3, 2021 R2521025 $2,400,000 Terminated
December 1, 2020 R2521025 $2,400,000 Listed
November 1, 2019 R2390064 $2,450,000 Expired
July 17, 2019 R2390064 $2,450,000 Listed
July 11, 2019 R2357920 $2,700,000 Terminated
April 10, 2019 R2357920 $2,700,000 Listed
March 15, 2019 R2332794 $2,800,000 Terminated
January 16, 2019 R2332794 $2,800,000 Listed
January 16, 2019 R2319879 $2,800,000 Terminated
January 16, 2019 R2319879 $2,800,000 Expired
November 1, 2018 R2319879 $2,800,000 Listed
October 31, 2018 R2302689 $3,000,000 Terminated
September 5, 2018 R2302689 $3,000,000 Listed
August 1, 2016 R2048028 $3,000,000 Expired
July 31, 2016 R2048028 $3,000,000 Terminated
March 21, 2016 R2048028 $3,000,000 Listed

Interested in the full price history of this home? Contact us.

Seeing this blurry text? - The Real Estate Board requires you to be registered before accessing this info. Sign Up for free to view.

Coach House or Laneway Home Potential

Homes For Sale & Sold
693 Plymouth Drive, North Vancouver
$1,999,000
4 hours ago
RA Realty Alliance Inc. MLS ®: R3125637
Bed:
6
Bath:
3
Interior:
2,562 sq/ft
Type:
House
3015 Royal Avenue, North Vancouver
$1,399,000
1 day ago
Oakwyn Realty Ltd. MLS ®: R3125158
Bed:
2
Bath:
1
Interior:
1,761 sq/ft
Type:
House

OPENS

Saturday 23 May 2:00-4:00 PM

361 West 19th Street, North Vancouver
$2,649,000
5 days ago
Oakwyn Realty Ltd. MLS ®: R3124209
Bed:
4
Bath:
2
Interior:
2,283 sq/ft
Type:
House
962 Whitchurch Street, North Vancouver
$1,699,900
9 days ago
Royal LePage Sussex MLS ®: R3122068
Bed:
4
Bath:
2
Interior:
2,233 sq/ft
Type:
House

693 Plymouth Drive, North Vancouver
$1,999,000
4 hours ago
RA Realty Alliance Inc. MLS ®: R3125637
Bed:
6
Bath:
3
Interior:
2,562 sq/ft
Type:
House
3015 Royal Avenue, North Vancouver
$1,399,000
1 day ago
Oakwyn Realty Ltd. MLS ®: R3125158
Bed:
2
Bath:
1
Interior:
1,761 sq/ft
Type:
House

OPENS

Saturday 23 May 2:00-4:00 PM
361 West 19th Street, North Vancouver
$2,649,000
5 days ago
Oakwyn Realty Ltd. MLS ®: R3124209
Bed:
4
Bath:
2
Interior:
2,283 sq/ft
Type:
House
962 Whitchurch Street, North Vancouver
$1,699,900
9 days ago
Royal LePage Sussex MLS ®: R3122068
Bed:
4
Bath:
2
Interior:
2,233 sq/ft
Type:
House
Find other North Vancouver Coach House or Laneway Home Potential homes for sale and sold — Plus, sign up for alerts so you never miss a listing or sale.

Nearby MLS® Listings

There are 35 other houses for sale in Lynn Valley, North Vancouver.

3297 Fromme Road, North Vancouver
$1,499,000
23 hours ago
Oakwyn Realty Ltd. MLS ®: R3125242
Bed:
3
Bath:
2
Interior:
1,039 sq/ft
Type:
House
1249 Frederick Road, North Vancouver
$3,699,000
1 day ago
Sutton Group-West Coast Realty MLS ®: R3125078
Bed:
6 + den
Bath:
6
Interior:
4,768 sq/ft
Type:
House

4268 Hoskins Road, North Vancouver
$2,199,900
1 day ago
Sutton Group-West Coast Realty MLS ®: R3124792
Bed:
5
Bath:
4
Interior:
2,932 sq/ft
Type:
House

OPENS

Saturday 23 May 2:00-4:00 PM
Sunday 24 May 12:00-1:45 PM
1376 Dyck Road, North Vancouver
$3,498,800
5 days ago
88West Realty MLS ®: R3124217
Bed:
5
Bath:
6
Interior:
4,909 sq/ft
Type:
House

3297 Fromme Road, North Vancouver
$1,499,000
23 hours ago
Oakwyn Realty Ltd. MLS ®: R3125242
Bed:
3
Bath:
2
Interior:
1,039 sq/ft
Type:
House
1249 Frederick Road, North Vancouver
$3,699,000
1 day ago
Sutton Group-West Coast Realty MLS ®: R3125078
Bed:
6 + den
Bath:
6
Interior:
4,768 sq/ft
Type:
House
4268 Hoskins Road, North Vancouver
$2,199,900
1 day ago
Sutton Group-West Coast Realty MLS ®: R3124792
Bed:
5
Bath:
4
Interior:
2,932 sq/ft
Type:
House

OPENS

Saturday 23 May 2:00-4:00 PM
Sunday 24 May 12:00-1:45 PM
1376 Dyck Road, North Vancouver
$3,498,800
5 days ago
88West Realty MLS ®: R3124217
Bed:
5
Bath:
6
Interior:
4,909 sq/ft
Type:
House
Search all houses for sale in Lynn Valley, North Vancouver + With a free account set new search alerts for daily updates.

Nearby Sales

There have been 337 houses reported sold in Lynn Valley, North Vancouver in the last two years.

Most Recent Sales
SOLD
$1,234,567
List Price $1,000,000
Sign in  to view this home.
SOLD
$1,234,567
List Price $1,000,000
Sign in  to view this home.

SOLD
$1,234,567
List Price $1,000,000
Sign in  to view this home.
SOLD
$1,234,567
List Price $1,000,000
Sign in  to view this home.
Search over 2 years of house sales in Lynn Valley, North Vancouver with access to sold prices and dates. + Set an alert for automatic email updates so you never miss a sale.

FAQs

How much is 1120 Harold Road listed for?

1120 Harold Road is listed for sale for $3,950,000.

When was 1120 Harold Road built?

1120 Harold Road was built in 1905 and is 121 years old.

How large is 1120 Harold Road?

1120 Harold Road is 2,479 square feet across 2 floors.

How many bedrooms and bathrooms does 1120 Harold Road have?

1120 Harold Road has 3 bedrooms and 1 bathroom.

What are the annual taxes?

The annual taxes for 1120 Harold Road are $8,682.29 for 2024.

What are the area active listing stats?

1120 Harold Road is located in Lynn Valley, North Vancouver. The average house for sale in Lynn Valley is listed for $2.1M. The lowest priced houses for sale in Lynn Valley, North Vancouver is listed for 1.5M, while the most expensive home for sale is listed for $3.95M. The average days on market for the houses currently listed for sale is 24 days.

When was the listing information last updated?

The listing details for 1120 Harold Road was last updated May 20, 2026 at 02:12 PM.

Listing Office: Angell, Hasman & Associates Realty Ltd.

Listing information last updated on May 20, 2026 at 02:12 PM.

Disclaimer: All information displayed including measurements and square footage is approximate, and although believed to be accurate is not guaranteed. Information should not be relied upon without independent verification.

FOLLOW FOR PRICE ALERTS!

Follow this home for price change alerts
and a sold notification
(with instant access to the sale price)